3600 Paradise Valley RoadNational City, CA 91950




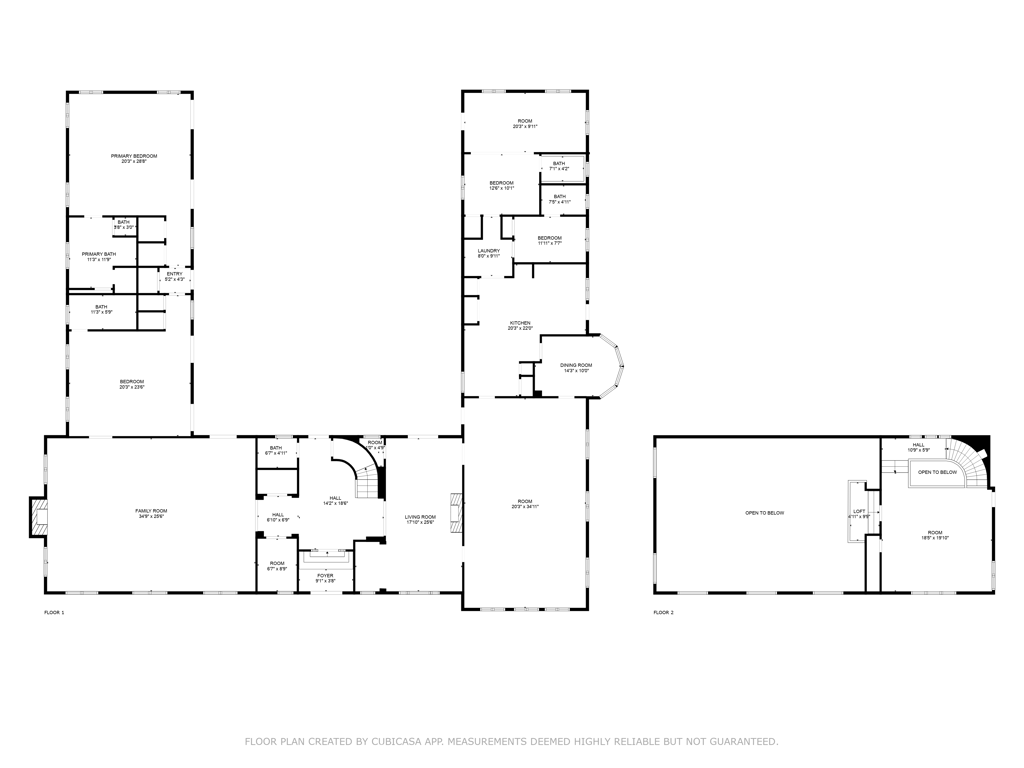
The Collins-Wellington Estate, an architectural gem in San Diego, presents a Spanish-Revival Castle built in 1928 by H.A. Collins. Nestled atop a private hill amidst a sprawling 8 acres of developable land, this estate offers a rare combination of seclusion, grandeur, and historical significance. It is listed on the Historic Register and benefits from huge property tax savings under the Mills Act. This 5,766 square foot mansion features intricate old-world craftsmanship, including high beam ceilings, inlaid onyx floors, hand-painted ceiling designs, and oak flooring with peg and bowtie detailing. The design boasts genuine Spanish Castle motifs, with repeating arches and wrought iron details that harmonize throughout the castle. The residence includes four bedrooms, each with en-suite baths, and ample space for sitting areas or home offices. A double foyer with stone castle walls, gold-gilded ceilings, and a wrought iron staircase leads to a private upstairs loft. The grand 35 x 25-foot ballroom/living room, with its 18-foot high cathedral ceiling and balcony, once hosted live musicians for dancers below. A spacious 35 x 20-foot dining room with inlaid onyx floor, and an updated kitchen with a granite island, enable grand-scale entertaining. The sunny breakfast nook sits below the castle’s tower, and a massive 10-car garage offers extensive storage and parking. Outside, the expansive grounds provide ample space for relaxation and entertainment, including a huge sheltered inner courtyard, with potential for additional structures such as a pool or ADU. The hilltop estate commands stunning panoramic views of downtown San Diego, the harbors, and the Pacific. Its location, just 4 minutes to the 805 freeway, gives quick access to all that the San Diego region has to offer. The Collins-Wellington Estate is more than a home; it is an unparalleled experience, living within an architectural work of art. This once-in-a-lifetime opportunity allows one to own a piece of history and enjoy a tranquil retreat from the bustling world below, while remaining close to civilization and all its amenities.
| 9 months ago | Listing updated with changes from the MLS® |
This information is for your personal, non-commercial use and may not be used for any purpose other than to identify prospective properties you may be interested in purchasing. The display of MLS data is usually deemed reliable but is NOT guaranteed accurate by the MLS. Buyers are responsible for verifying the accuracy of all information and should investigate the data themselves or retain appropriate professionals. Information from sources other than the Listing Agent may have been included in the MLS data. Unless otherwise specified in writing, the Broker/Agent has not and will not verify any information obtained from other sources. The Broker/Agent providing the information contained herein may or may not have been the Listing and/or Selling Agent.
Did you know? You can invite friends and family to your search. They can join your search, rate and discuss listings with you.